2240 Dr Martin Luther King Jr Blvd ,Single Family Residence for Sale
2240 Dr Martin Luther King Jr Blvd for Sale













Price $106,660.00
- Living area 1258
- Year Build 1988
- Waterfront
- Zip 33069
- Style Attached, One Story
- Parking Description Additional Spaces Available, Covered, Other
- Pool Yes
- Status Pending
Description
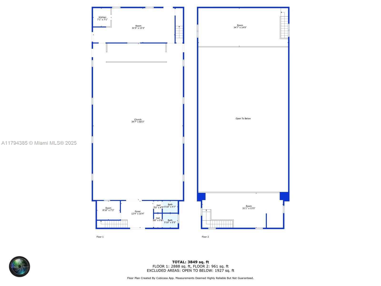
Charming single-family home with new roof, included in a rare 3-parcel package offered in Pompano Beach for a total price of $2.4M. Property is being sold together with a church and adjacent vacant land, totaling 30,293 SF. WILL NOT BE SOLD SEPERATELY! Located on a high-visibility corridor zoned B-3, offering exceptional flexibility for redevelopment, live-work use, or investment. Home interior requires updates?ideal opportunity to renovate, expand, or incorporate into a broader commercial or mixed-use vision. Close to major highways, schools, and growing development zones. Property will not be sold separately. Showings by appointment with notice and NDA.
33-48-42 W 100 OF E 165 OF N 115 OF W1/2 OF SE1/4 OF NE1/4 OF NE1/4
1/4 To Less Than 1/2 Acre Lot
Charming single-family home with new roof, included in a rare 3-parcel package offered in Pompano Beach for a total price of $2.4M. Property is being sold together with a church and adjacent vacant land, totaling 30,293 SF. WILL NOT BE SOLD SEPERATELY! Located on a high-visibility corridor zoned B-3, offering exceptional flexibility for redevelopment, live-work use, or investment. Home interior requires updates?ideal opportunity to renovate, expand, or incorporate into a broader commercial or mixed-use vision. Close to major highways, schools, and growing development zones. Property will not be sold separately. Showings by appointment with notice and NDA.
City:Pompano Beach,View:1:Other,View Y N:1,Zoning:RS-2,Cooling:1:Wall/Window Unit(s),Heating:1:Window/Wall,List A O R:A-Miami Association of REALTORS,Tax Year:2024,Flooring:1:Ceramic Floor,2:Other,3:Tile,Latitude:26.2434819,Cooling Y N:1,List Price:106660,Listing Id:A11794385,Longitude:-80.1528972,Mls Status:Pending,Year Built:1988,Appliances:1:Electric Range,2:Refrigerator,Directions:USE GPS,High School:Blanche Ely,Living Area:1258,Possession:1:Other,Postal Code:33069,Street Name:Dr Martin Luther King Jr Blvd,Contingency:Close of Other Property,Coordinates:1:26.2434819,Photos Count:13,Building Name:N/A,Days On Market:8,Listing Terms:1:Conventional,Lot Size Units:Square Feet,M I A M I R E_ Area:3426,M L S Area Major:N/a,On Market Date:2025-05-01,Parcel Number:484233000161,Property Type:Residential,Street Number:2240,Bathrooms Full:2,Bedrooms Total:3,Carport Spaces:1,Covered Spaces:1,M I A M I R E_ Style:R30-No Pool/No Water,Off Market Date:2025-05-09,Public Remarks:Charming single-family home with new roof, included in a rare 3-parcel package offered in Pompano Beach for a total price of $2.4M. Property is being sold together with a church and adjacent vacant land, totaling 30,293 SF. WILL NOT BE SOLD SEPERATELY! Located on a high-visibility corridor zoned B-3, offering exceptional flexibility for redevelopment, live-work use, or investment. Home interior requires updates?ideal opportunity to renovate, expand, or incorporate into a broader commercial or mixed-use vision. Close to major highways, schools, and growing development zones. Property will not be sold separately. Showings by appointment with notice and NDA.,Structure Type:1:House,County Or Parish:Broward County,Direction Faces:North,Expiration Date:2026-02-28,List Office Name:Elite Realty Partners, Inc.,Standard Status:Pending,Living Area Units:Square Feet,Major Change Type:Pending,Parking Features:1:Covered,2:Other,Postal Code Plus4:1506,Property Sub Type:Single Family Residence,State Or Province:FL,Subdivision Name:N/A,Tax Annual Amount:648,Unparsed Address:2240 Dr Martin Luther King Jr Blvd, Pompano Beach FL 33069,Elementary School:Drew; Charles,Interior Features:1:Den/Library/Office,Listing Agreement:Exclusive Right To Sell,Year Built Details:Effective Year Built,Building Area Total:1542,Building Area Units:Square Feet,Leasable Area Units:Square Feet,Lot Size Square Feet:11326,M I A M I R E_ Flood Zone:X,M I A M I R E_ L P Amt Sq Ft:84.7854,Original List Price:1,Previous List Price:1,Public Survey Range:48,Architectural Style:1:One Story,I D X Participation Y N:1,M I A M I R E_ Last Status:Active,M I A M I R E_ N A R Rules Y N:1,Syndication Remarks:Charming single-family home with new roof, included in a rare 3-parcel package offered in Pompano Beach for a total price of $2.4M. Property is being sold together with a church and adjacent vacant land, totaling 30,293 SF. WILL NOT BE SOLD SEPERATELY! Located on a high-visibility corridor zoned B-3, offering exceptional flexibility for redevelopment, live-work use, or investment. Home interior requires updates?ideal opportunity to renovate, expand, or incorporate into a broader commercial or mixed-use vision. Close to major highways, schools, and growing development zones. Property will not be sold separately. Showings by appointment with notice and NDA.,Listing Contract Date:2025-05-01,Originating System I D:miamire,Public Survey Section:33,Showing Instructions:Call Listing Agent,See Broker Remarks,Showing Assist,Street Number Numeric:2240,Tax Legal Description:33-48-42 W 100 OF E 165 OF N 115 OF W1/2 OF SE1/4 OF NE1/4 OF NE1/4,M I A M I R E_ Current Price:106660,Middle Or Junior School:Crystal Lakes,Public Survey Township:48,Bathrooms Total Decimal:2,Bathrooms Total Integer:2,M I A M I R E_ Pets Allowed Y N:1,Originating System Name:Miami Association of REALTORS?,M I A M I R E_ Adjusted Area S F:1353,M I A M I R E_ Geographic Area:N Broward Dixie Hwy To Turnpike (3411-3432;3531),M I A M I R E_ Internet Remarks:Single-family home is part of a 3-parcel portfolio listed at $1.9M. NOT offered separately. See MLS A11790551 & A11794331,M I A M I R E_ Parcel Number M L X:0161,M I A M I R E_ Street View Param:1$26.244071382645398$-80.15256099865546$262.56$9.01$1.00$,M I A M I R E_ Supplement Count:3,Contract Status Change Date:2025-05-09,Internet Address Display Y N:1,M I A M I R E_ Cable Available Y N:1,M I A M I R E_ Ok To Advertise List:Yes - Attribution Required (Agent and Office),M I A M I R E_ Agent Alternate Phone:954-601-6639,Internet Entire Listing Display Y N:1,M I A M I R E_ Address Internet Display:2240 Dr Martin Luther King Jr Blvd,M I A M I R E_ R A T I O_ Current Price_ By_ S Q F T:84.79,
- Price $106,660.00
- Price Change: 2025-05-02
- Beds 3
- Baths 2
- 1/2 Baths 0
- Living area 1258 sq. ft.
- Price per sq.ft. $
- Year Build 1988
- Waterfront
- View Garden, Other
- Pool Yes
- Style Attached, One Story
- Construction Concrete Block Construction
- Parking Description Additional Spaces Available, Covered, Other
- Flooring Type Carpet, Ceramic Floor, Other, Tile
- ML Number A11794385
- Property Type Residential
- Status Pending
- Listed 2025-05-02
- Days on Market 303
- Furnished
- Pets Allowed Yes
- Pets Restrictions Yes
- City Pompano Beach
- Zip 33069
- State Florida
- Subdivision
- Development Name N/A
- HOA Fees
- Taxes 648
- Taxes Year 2024
En
Ru
Es